Dwa niezależne lokale w centrum Szklarskiej Poręby – idealna inwestycja z wysoką stopą zwrotu
Położona w samym sercu Szklarskiej Poręby, ta wyjątkowa nieruchomość to doskonała propozycja inwestycyjna, zapewniająca stabilne przychody i szerokie możliwości wynajmu. Przebudowana od podstaw w 2017 roku, oferuje dwa niezależne apartamenty, które można wynajmować osobno lub jako jeden większy lokal. Lokalizacja to absolutny atut – restauracje, sklepy, Górska Plaża oraz szlaki turystyczne i rowerowe są na wyciągnięcie ręki.
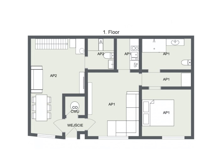
Funkcjonalny układ – dwie niezależne jednostki
Nieruchomość składa się z części wspólnej, obejmującej przedsionek oraz kotłownię z piecem gazowym i zasobnikiem na wodę, co zapewnia wydajność i niskie koszty eksploatacji.
Apartament 1 (AP1) – jednopoziomowy
Zaprojektowany z myślą o funkcjonalności i komforcie. Obejmuje przestronny pokój dzienny z dużym oknem aż do ziemi, który doskonale doświetla wnętrze, kuchnię, wnękę na narty z szafą, osobną sypialnię oraz łazienkę.
Apartament 2 (AP2) – dwupoziomowy
Idealne rozwiązanie dla większych grup. Składa się z dużego pokoju dziennego połączonego z jadalnią i aneksem kuchennym, dwóch sypialni, łazienki oraz korytarza, zapewniając maksymalny komfort nawet dla kilku osób.
Nieruchomość przystosowana jest do przyjęcia 10 osób, a po drobnych zmianach aranżacyjnych może komfortowo pomieścić nawet 12 gości, co czyni ją wyjątkową opcją dla inwestorów poszukujących wysokiego obłożenia i dużego potencjału zarobkowego.
Nowoczesne rozwiązania technologiczne – wygoda i oszczędność
Właściciel ma możliwość zdalnego sterowania centralnym ogrzewaniem przez internet, co optymalizuje koszty eksploatacyjne i ułatwia zarządzanie nieruchomością. Dodatkowo, w pokojach zamontowano rekuperację ścienną z wymiennikiem ciepła, co zwiększa komfort użytkowania i obniża koszty ogrzewania.
W pełni wyposażona i gotowa do wynajmu
Całość sprzedawana jest z pełnym wyposażeniem, które nadal będzie doskonale służyć przyszłym właścicielom przez kilka kolejnych lat. Dwa dedykowane miejsca postojowe, przypisane do nieruchomości, to prawdziwy atut, zwłaszcza w centrum miasta, gdzie dostępność parkingu jest ograniczona.
Potencjał inwestycyjny
Dzięki możliwości wynajmu dwóch oddzielnych apartamentów lub całego obiektu, właściciel może dostosować ofertę do różnych grup turystów. Duże apartamenty z większą liczbą sypialni cieszą się ogromnym zainteresowaniem, zwłaszcza wśród grup zorganizowanych. Do Szklarskiej Poręby licznie przyjeżdżają dwie lub trzy rodziny podróżujące razem, paczki znajomych oraz sportowcy trenujący w górskich warunkach.
Tego typu wynajem pozwala zwiększyć przychody, zmniejszyć liczbę rezerwacji do obsługi i zoptymalizować koszty, co czyni tę inwestycję wyjątkowo atrakcyjną i dochodową.
Szklarska Poręba – turystyczna perła Sudetów
Szklarska Poręba to jedno z najchętniej odwiedzanych miejsc w polskich górach, przyciągające turystów zarówno zimą, jak i latem. Miasto oferuje dziesiątki kilometrów tras narciarskich i biegowych, setki kilometrów szlaków pieszych i rowerowych, a także malownicze wodospady, punkty widokowe i historyczne schroniska.
Dzięki doskonałemu połączeniu drogowemu oraz kolejowemu, turyści mogą łatwo dotrzeć do Szklarskiej Poręby zarówno z Polski, jak i Czech. Bezpośrednie połączenie kolejowe zapewnia komfortowy dojazd z dużych miast, a także szybki dostęp do Jakuszyc – jednego z najlepszych ośrodków narciarstwa biegowego w Europie.
To nie tylko nieruchomość – to inwestycja, która zarabia
Dzięki doskonałej lokalizacji, nowoczesnym rozwiązaniom i ogromnemu potencjałowi wynajmu, ta nieruchomość jest idealnym wyborem dla osób szukających bezpiecznej i dochodowej inwestycji w górach.
Nie przegap tej okazji – skontaktuj się i poznaj jej potencjał na własne oczy! Pracujemy również w weekendy.
Mateusz Mierzejewski - +48 511 343 843
Dodatkowo firma APART-INVEST która sprawuje opiekę nad budynkiem oferuje usługi ZARZĄDZANIA WYNAJMEM APARTAMENTÓW. Dlatego mieszkając nawet na drugim końcu Polski będziecie Państwo mieli pełną kontrolę nad swoim apartamentem




Uwaga: mogą wystąpić dodatkowe opłaty za założenie księgi wieczystej oraz ustanowienie hipoteki.