Szklarska Poręba, 250 metrów od deptaku CENTRUM

Mieszkanie na sprzedaż

Opis nieruchomości

 
Jeśli szukacie Państwo apartamentu w najlepszej lokalizacji w Szklarskiej Porębie to z pewnością ul. Słoneczna jest tym adresem!

Faktura VAT 23% - możliwość odliczenia VAT dla osób fizycznych.

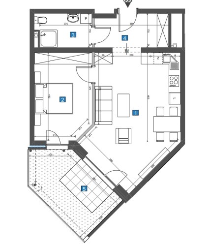
Apartament 2 pokojowy. Salon z aneksem +  sypialnia, garderoba i łazienka.

 
Świetny adres do wynajmu - najlepszy w Szklarskiej Porębie.

Budynek oddany do użytkowania, gotowy apartament !



W budynku jest winda, play room dla dzieci, część relaksu ( spa - w trakcie prac wykończeniowych ).

Miejsca postojowe zewnętrzne w cenie 28000 netto.

Apartament jest przestronny i można go stylowo urządzić.
 
Stan prawny: pełna własność - bez konieczności wynajmu.

Wykańczamy lokale pod klucz - zapraszamy w razie chęci przeprowadzenia kompleksowego remontu apartamentu wraz z projektem i wizualizacjami.

Polecam i zapraszam do kontaktu.
 

 

Nota prawna

Opis oferty zawarty na stronie internetowej sporządzany jest na podstawie oględzin nieruchomości oraz informacji uzyskanych od właściciela, może podlegać aktualizacji i nie stanowi oferty określonej w art. 66 i następnych K.C.

Szczegóły oferty

Symbol oferty APN-MS-1309
Powierzchnia 54,71 m²
Powierzchnia użytkowa 54,71 m²
Powierzchnia balkonów/tarasów 6,00 m²
Liczba pokoi 2
Piętro parter
Rodzaj budynku apartamentowiec
Technologia budowlana mieszana
Standard
Opłaty w czynszu administracja, Części wspólne, fundusz remontowy, sprzątanie
Opłaty wg liczników CO, części wspólne, prąd, woda
Liczba pięter w budynku 3
Stan lokalu deweloperski
Stan prawny Hipoteczne
Mies. czynsz admin. 1 000 PLN
Czynsz zimowy 1 000 PLN
Okna PCV
Instalacje nowe
Balkon duży
Liczba balkonów 3
Liczba tarasów 1
Rok budowy 2025
Widok panorama miasta
Gaz jest
Woda jest
Dojazd asfalt
Otoczenie centrum miasta
Ogrzewanie centralne
Alarm tak
Winda tak
Liczba wind 2
Usytuowanie jednostronne
Drzwi antywłamaniowe tak

Pomieszczenia

Rodzaj kuchni aneks kuchenny - połączony z salonem
Typ łazienki osobno z wc
Glazura łazienki nowego typu
Liczba przedpokoi 1

Lokalizacja

Kalkulator kredytowy

PLN
%
Wysokość raty

Kalkulator kosztów

PLN
PLN
PLN
PLN
PLN
PLN
%
PLN
Podatek od czynności cywilno-prawnych
Taksa notarialna (opłata notarialna)
VAT od taksy notarialnej (opłaty notarialnej)
Wniosek do WKW
VAT od wniosku do WKW
Prowizja agencji nieruchomości
VAT od prowizji agencji nieruchomości
Wypisy aktu notarialnego - około
RAZEM (cena + opłaty)

Uwaga: mogą wystąpić dodatkowe opłaty za założenie księgi wieczystej oraz ustanowienie hipoteki.

Podobne oferty

bez prowizji
mieszkanie na sprzedaż - Szklarska Poręba

mieszkanie na sprzedaż

Szklarska Poręba
2 pokoje 39,94 m2 13 500,00 zł/m2
bez prowizji
mieszkanie na sprzedaż - Szklarska Poręba

mieszkanie na sprzedaż

Szklarska Poręba
3 pokoje 63,38 m2 13 500,00 zł/m2
oferta specjalna
video
mieszkanie na sprzedaż - Szklarska Poręba

mieszkanie na sprzedaż

Szklarska Poręba
2 pokoje 54,66 m2 14 489,68 zł/m2
oferta specjalna
video
mieszkanie na sprzedaż - Szklarska Poręba

mieszkanie na sprzedaż

Szklarska Poręba
2 pokoje 46,42 m2 15 716,95 zł/m2

Napisz do nas

Proszę wypełnić to pole
Proszę wypełnić to pole
Proszę wypełnić to pole
Proszę wypełnić to pole
Trwa wysyłanie...

Ta strona wykorzystuje pliki cookies w celach statystycznych oraz w celu dostosowania naszych serwisów do indywidualnych potrzeb klientów. Zmiany ustawień dotyczących plików cookie można dokonać w dowolnej chwili modyfikując ustawienia przeglądarki. Korzystanie z tej strony bez zmian ustawień dotyczących cookies oznacza, że będą one zapisane w pamięci urządzenia.

rozumiem